PROJECTS

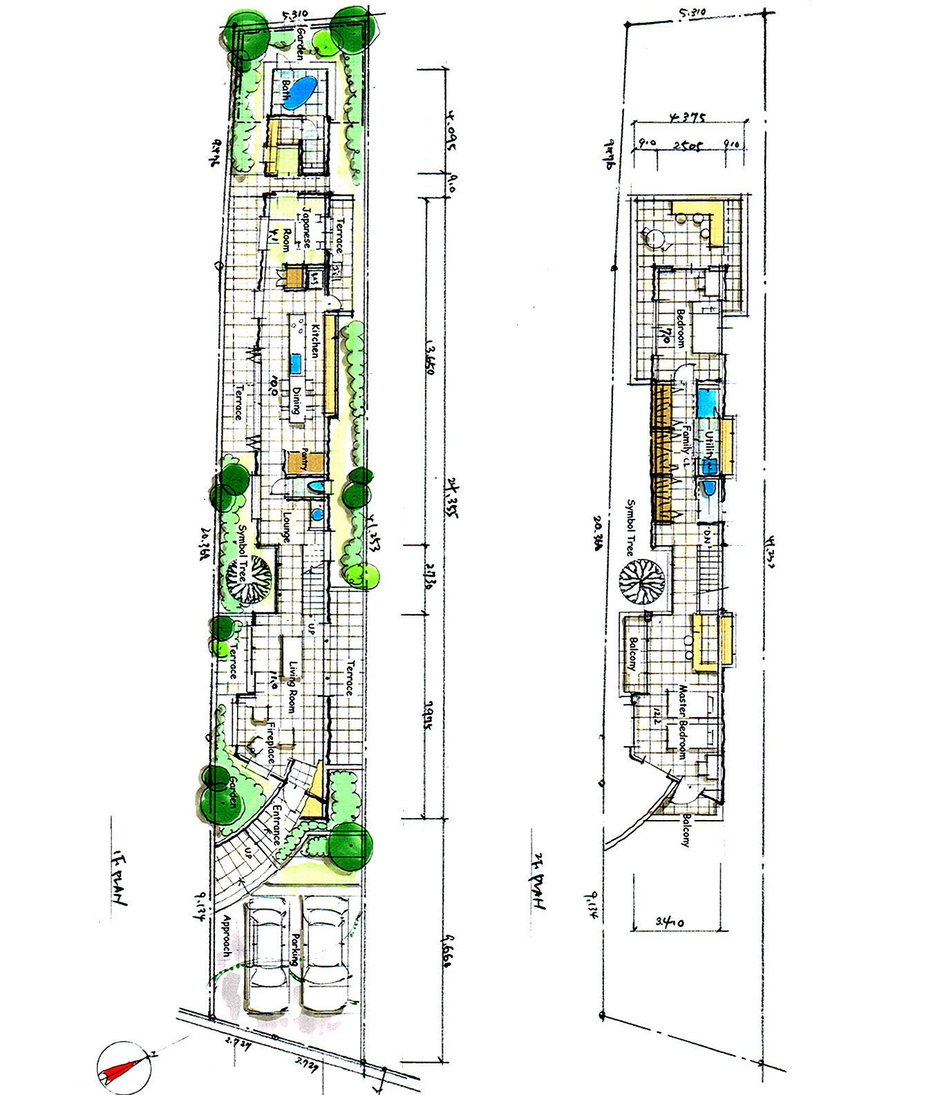
うなぎの寝床〜変形地の個性が魅力溢れる空間を創る〜








うなぎの寝床〜変形地の個性が魅力溢れる空間を創る〜

敷地面積/237.53㎡、建築面積/70.15㎡、延床面積/123.7㎡
1F床面積/70.15㎡、2F床面積/53.55㎡、バルコニー/23.37㎡

建ぺい率/30%、容積率/100%
その他規制/第一種風致地区、緑化地域、10m高度地区