PROJECTS

プロジェクト044





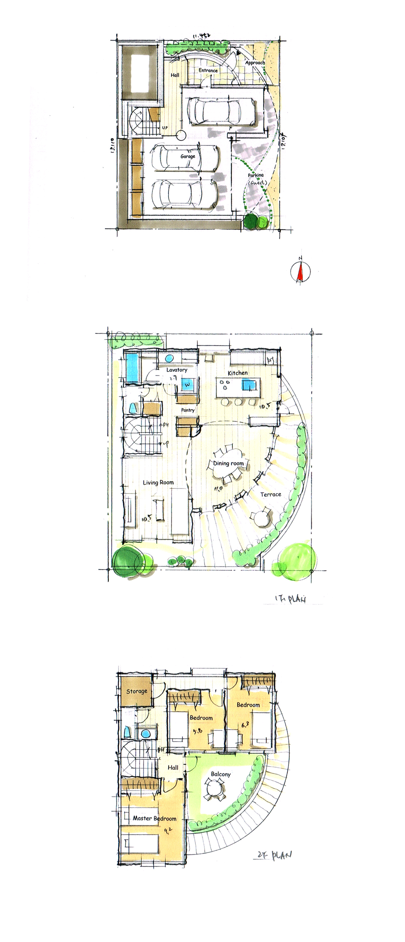
プロジェクト044

敷地面積/150.01㎡、建築面積/90㎡、延床面積/218㎡
1F床面積/76.42㎡、2F床面積/60.18㎡、地階面積/17.78㎡、バルコニー/15.45㎡

建ぺい率/60%、容積率/200%
その他規制/15m高度地区、準防火地域、緑化地域