PROJECTS

プロジェクト040





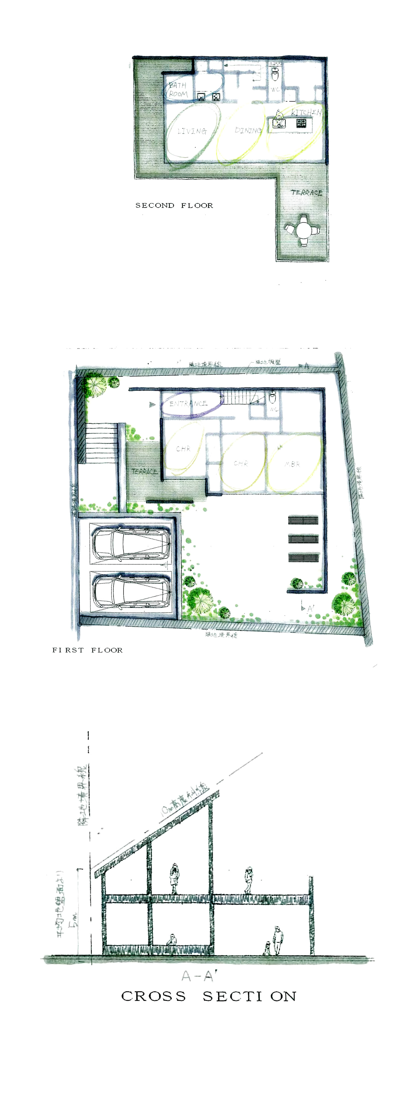
プロジェクト040

敷地面積/260.00㎡、建築面積/73.73㎡、延床面積/133.95㎡
1F床面積/71.84㎡、2F床面積/62.11㎡、車庫面積/40.09㎡

建ぺい率/50%、容積率/100%
その他規制/10m高度地区、宅地造成法、文教地区、22条地域