PROJECTS

プロジェクト036





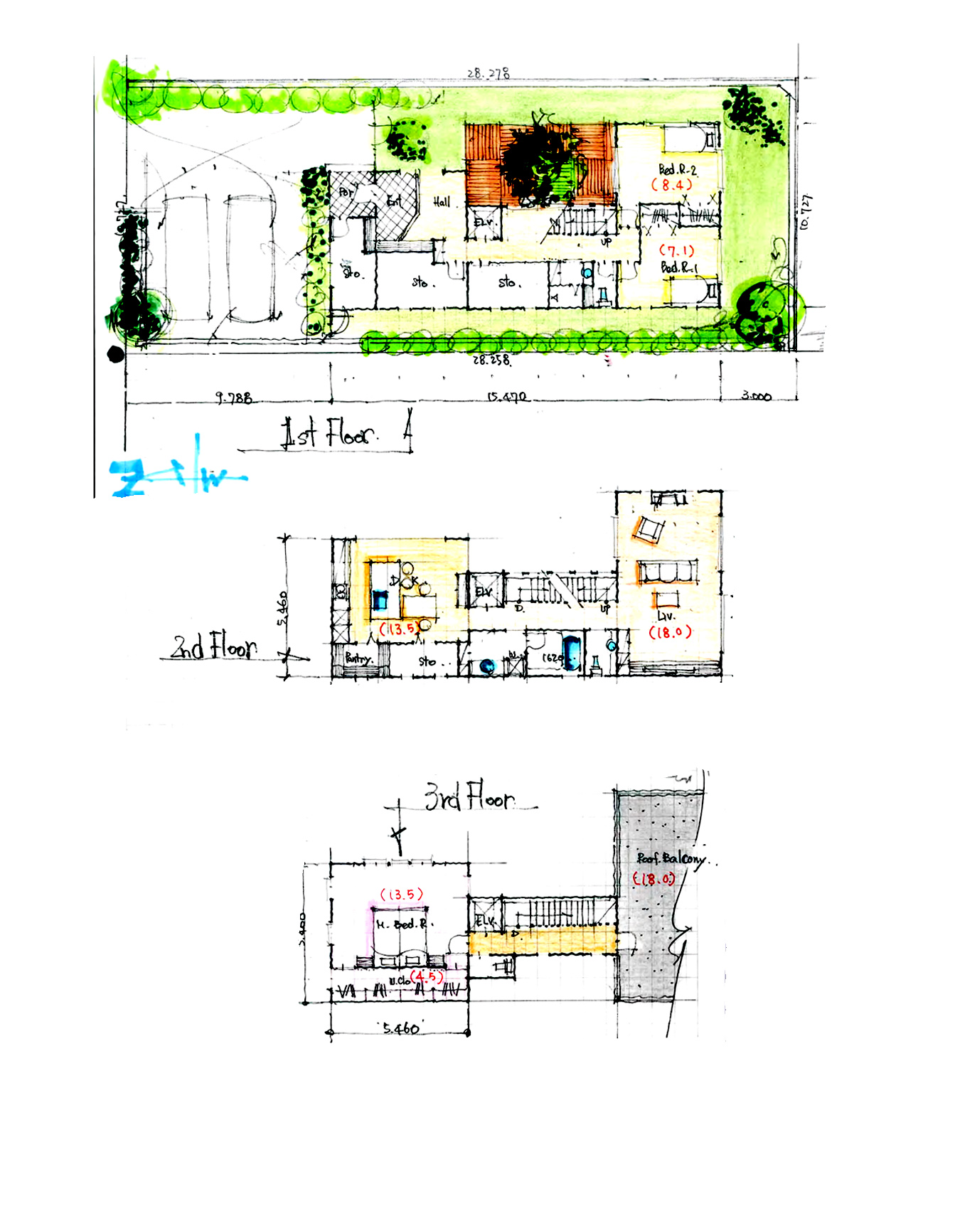
プロジェクト036

敷地面積/281.75㎡、建築面積/82.50㎡、延床面積/207.75㎡
1F床面積/79.19㎡、2F床面積/82.50㎡、3F床面積/46.06㎡

建ぺい率/30%、容積率/100%
その他規制/10m高度地区、宅地造成法、砂防法、第一種風致地区、壁面後退/隣地1.5m、道路2.0m