「雑木林は枯葉が多く積もり、片付けようとすると大変だけど、落ちていてもいい」
「芝生を貼るとかえって気になる。自然のままがいい」
施主様のこれらの言葉が、とても印象に残っています。

人間の手が加わりすぎない、あるがままの自然に近い姿。
人間も家も植物も、それぞれの役目を果たしながら、
互いに無理なく深呼吸できるような、そのような家を直感しました。

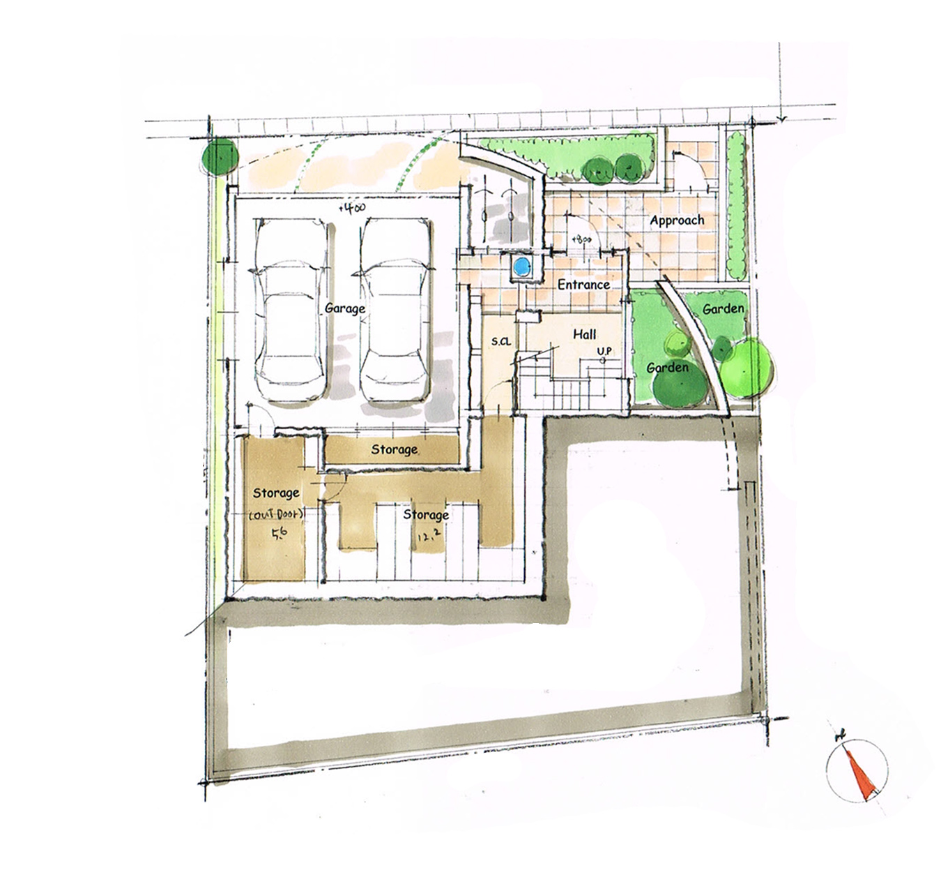
南山は敷地諸条件から、雑木林を想定することはできませんが、
外からは想像できない施主様だけの生活をイメージして、プランを作成しました。

曲面擁壁で建物を覆い、内と外を分ける結界のような役割を。
アプローチからは中庭と外庭の境界がはっきり分かれ、施主様専用のスペースへと誘います。

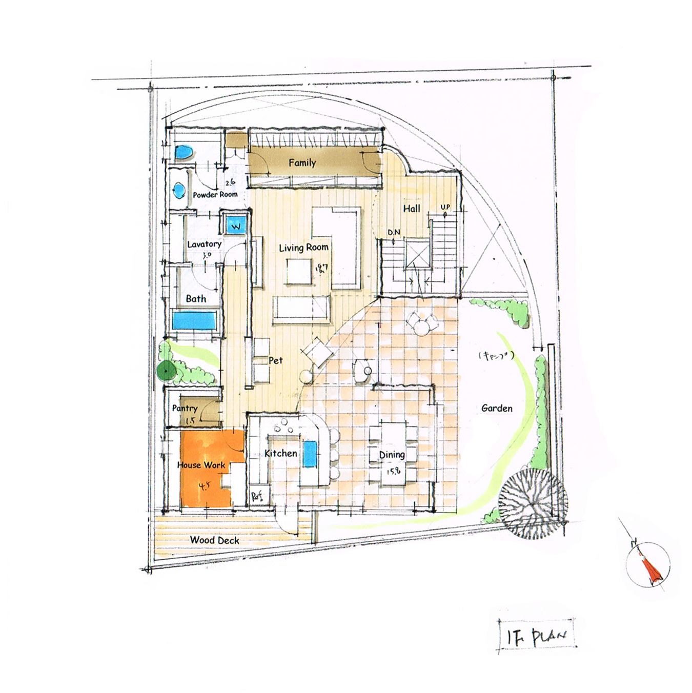
よく雑誌で真っ白い部屋に椅子がぽつんと一脚だけ置かれている...
そんな家を見かけますが 実際に人が住まう家では、あまり現実的ではありません。
そのような生活スタイルを叶えるプランとして、
家の中に入るバック動線をキッチンまで繋げることで、外からリビングに物を持ち込まない

「片付いた家」「散らからない家」
そのような暮らし方が叶えるプランです。
敷地面積/219.61㎡、建築面積/108.9㎡、延床面積/282.1㎡
1F床面積/108.9㎡、2F床面積/86.46㎡、B1F床面積/51.72㎡、バルコニー/7.45㎡、吹抜け/15.02㎡