
かつて"less is more"(「少ない方がより豊かである」)と言った建築家がいました。 しかし、「ミニマム」なデザインを楽しむ一方で、 ミニマリズムは機能を削ぎ落として単純さを追求するあまりに、 居住空間としてはそぐわないのではないか、という言葉を耳にすることもあります。

「スローモダン」とは、スローライフとモダニズムを併せ持つ言葉で、 現代建築の持つ機能性に、温かみのあるスローな素材やディテールを取り入れた、 心地の良い空間を表しています。

シンプルすぎない温かさ、柔らかさをそのまま味わうのももちろんのこと、 実際に住む中で、 ご自身の生活の考え方やご家族の成長、思い入れを住まいに馴染ませていくことで ますます住み心地が良くなっていくことと思います。

余計な装飾を排しつつも、 温かみまで削ぎ落としてしまわないような 新しいものの中に、長い年月を経験したものが入った生活 家とともに、より精神的に豊かな生活を築いていけたらと思います。
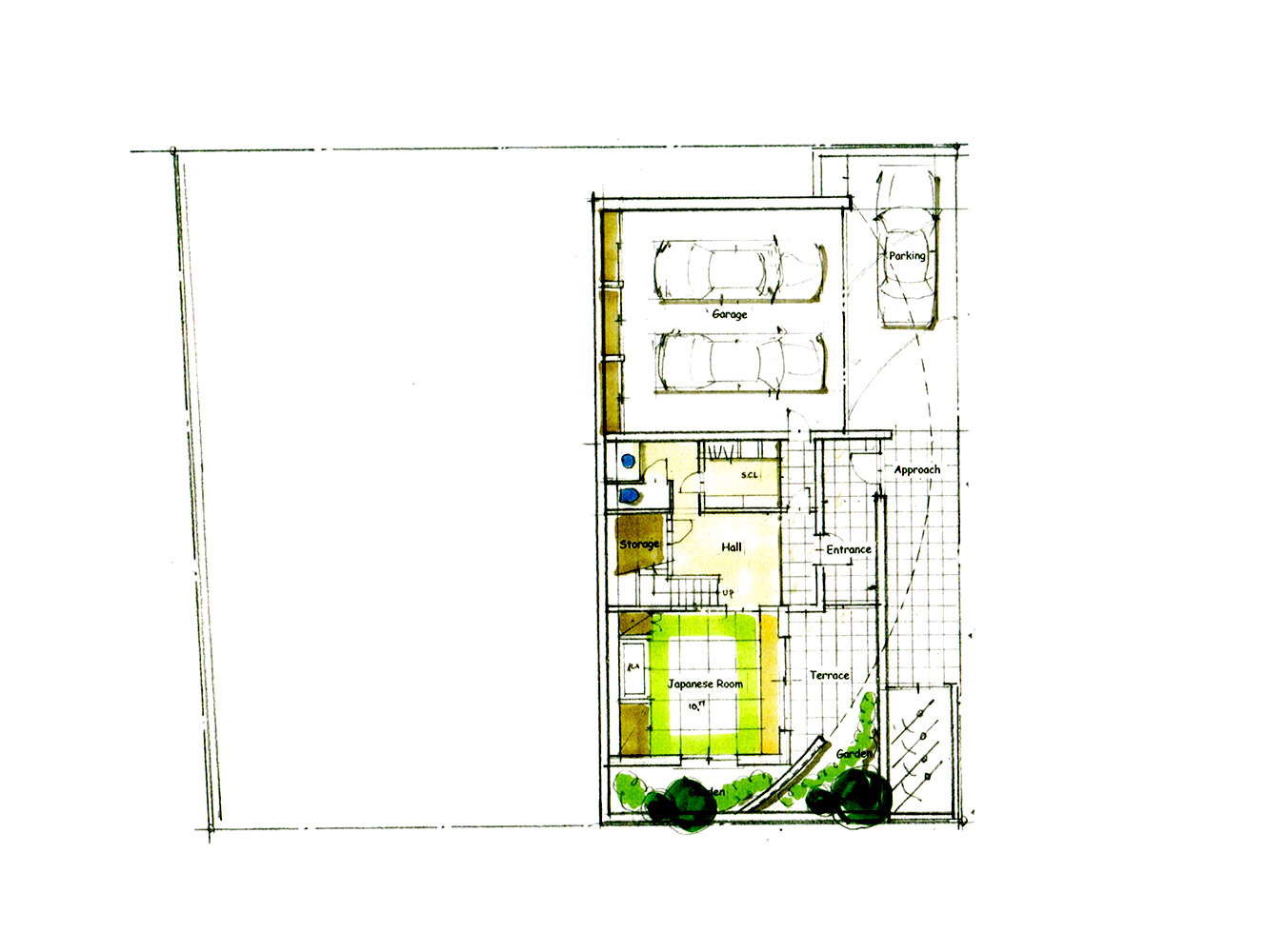
敷地面積/449.00㎡、建築面積/134.00㎡、延床面積/365.7㎡
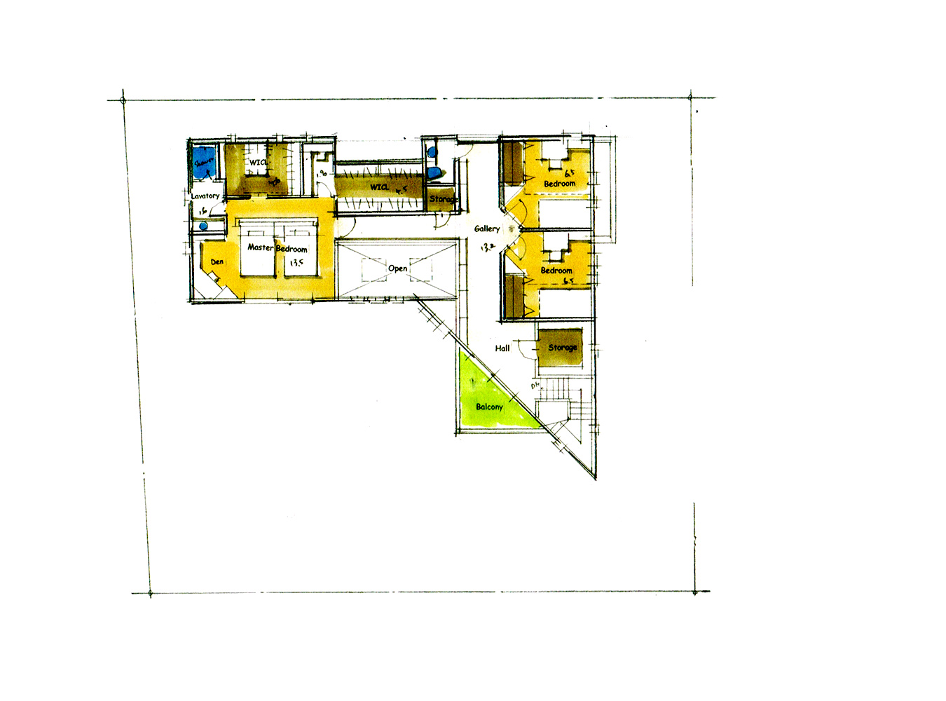
1F床面積/134㎡、2F床面積/114.8㎡、B1F床面積/66.23㎡、バルコニー/6.62㎡、吹抜け/13.07㎡