
計画地は地下鉄東山線「本郷」駅から徒歩10分の距離にありながら、閑静で明るく健康的でとても立地条件に恵まれた環境だと思われます。
都市型住宅として敷地面積65坪という広さはこれからの暮らしの提案の中で、いろんな可能性を秘めている土地だと感じられます。

「防災・防犯機能をどう捉えるか」「省エネ(断熱)、防音をいかに建築的に処理するか」について
外的から防護するイメージとして「要塞」が考えられます。
ここでは、外に閉じる建築形態でありながら、中からは広がりのある開放的な空間を提案いたします。
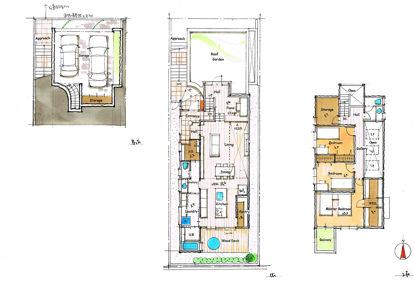
リビングには窓を設けず、トップライトと南面、北面の大開口のみ設置し、
解放感、通風、明るさ、そして都市型住宅で重要な要素であるプライバシーを確保いたします。(水回りは高窓で処理)
この形態は「省エネ(断熱)、防音」にもつながってくる要素でもあります。
道路から見えない南側窓はシャッターで防護しますが、北側開口部はオープンのままとします。
・大変目立つ場所であり、侵入しにくいこと、
・常に灯りを外にもらすことで、不在の確認がしにくいものと考えました。
上記の結果として、外観パースのようなデザインを提案します。
コンセプトのとらえ方が変われば、外観も柔軟に対応していきたいと考えています。

「機能性(主婦動線)」について
・人の暮らしには「表」と「裏」の場所があります。
玄関からキッチンまで一本の動線を確保し、ここで「裏」の生活を確保しようというのが狙いです。これは裏動線、水回りを集約化することで主婦動線の単純化にもつながっています。お子様が「ただいま」と元気に帰ってきて、
・靴脱ぐ → コートを脱ぐ → 鞄、帽子をしまう → 用を足す
→手を洗う → 表であるリビングには余分なものを持ち込むことがなくなります。
お出かけするときはこの逆を行うことになります。
この動線を確保することで、25畳という広いLDKでありながら、余分なもののないミニマムな空間を作ることができると考えています。
新しい空間の提案
インナーガレージの設置による段差をスキップフロアーとしてとらえ、ピアノステージを提案いたします。
家のどこからでもピアノが見える、家の中心的存在になります。季節を通して変わることのない、北からの淡い光の中にこのような装置を設けることは気持ちの豊かさを育み、子供の成長にも伸び伸びとしたものを与えてくれると考えます。
敷地面積/216.24㎡、建築面積/84.90㎡、延床面積/187.20㎡
1F床面積/82.00㎡、2F床面積/67.30㎡、車庫/37.90㎡、バルコニー/4.10㎡、吹抜け/13.50㎡