
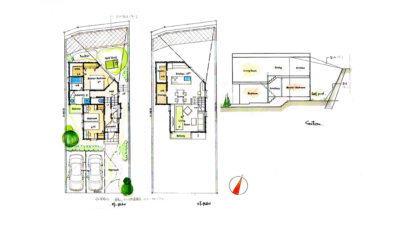
北側擁壁をメッシュシートで囲い、ゴルフの打ち放し練習のできる家です。
脇にはバンカーショットが練習できるスペースもご用意しました。
本物件は北側高さ5.0M擁壁の上に 4.0M道路、南に 11.0Mの幹線道路に面し、
敷地も 1.0Mの高低差のある面白い条件を備えた土地です。
実際住まわれる方が、どんな暮らしをされたいのかによって、いろんな提案のできる土地です。
敷地の高低差はスキップフロアーとして、空間に広がりのある提案としています。
敷地面積/188.00㎡、建築面積/51.01㎡、延床面積/98.43㎡
1F床面積/50.65㎡、2F床面積/47.782㎡、バルコニー/4.67㎡