PROJECTS

ラグジュアリー・リゾートライフ

アジアンリゾートホテルのような空間で、贅沢な毎日を...。

ラグジュアリー・リゾートライフ

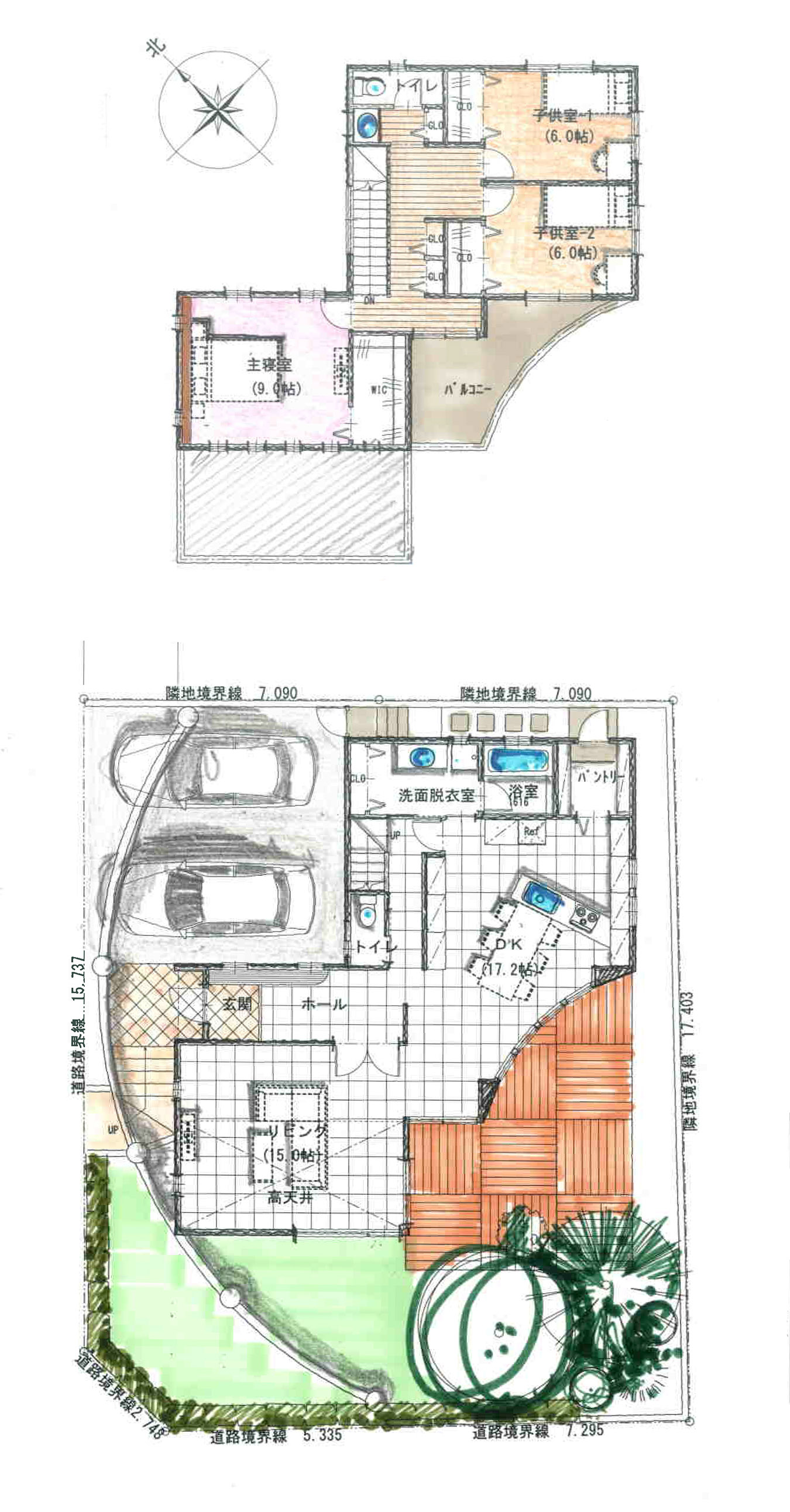
敷地面積/250.57㎡、建築面積/83.11㎡、延床面積/140.67㎡、建ぺい率/60%、容積率/200%
1F床面積/81.87㎡、2F床面積/58.80㎡
その他規制/20m高度地区、文教地区、緑化地域