どんな土地でも見方を変えれば、必ず可能性は生まれてくると思います。
こんな土地ではよい家が建たないという先入観を捨て、さまざま条件をいかにクリアしていくか。
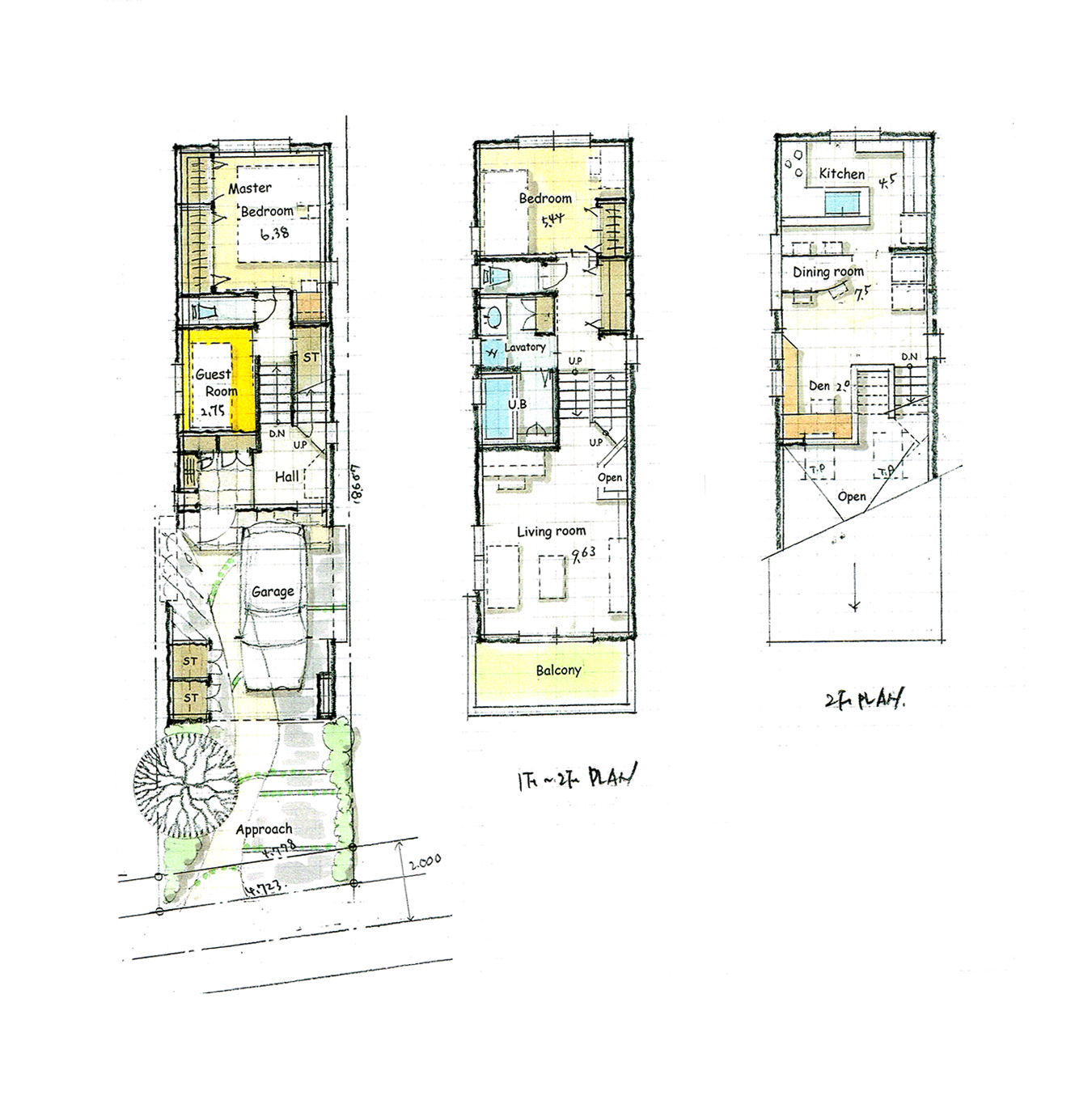
細長い狭小地でも、見方とアイデアで、理想の暮らしを創ることができます。
万彩はアイデアと工夫を綿密に組み上げて施主様の理想に色づけしていきます。

狭い土地に家を建てると、リビングや家族の個室も小さくなってしまい、
窮屈な暮らしになると思いがちですが、プラン次第で狭さは克服することはできます。
このプランのポイントは、中をなるべく仕切らず、廊下をなるべくつくらず、階段も部屋の中にとりこんで、
フロアをオープンなワンルームスタイルにすることで開放的でゆったりとした空間を創りだしました。
スキップフロアによって生まれた「5つのスペース」を家族が真に快適に暮らせるように考え、
生活のリズムとスタイルを考慮してみました。
家族がくつろぐLDKを二階にすることで光が降り注ぐ最高のくつろぎ空間が誕生しました。
天井も高くすることで落ち着きも感じることで家の中心であるリビングに、自然に家族が集まってくる…、
それがこの家のスタイルです。
敷地面積/92.63㎡、延床面積/116.76㎡、建ぺい率/80%、容積率/200%
1F床面積/50.30㎡、2F床面積/42.44㎡、吹き抜け/0.62㎡、ベランダ/7.04㎡