PROJECTS

自然の恵みを満喫する「天守の家」

視界270度、さえぎるものなし、自然の恵みを満喫する「天守の家」は、
まさに絶景の眺望を持ち、土地の特徴を利用したプランで作られています。

自然の恵みを満喫する「天守の家」

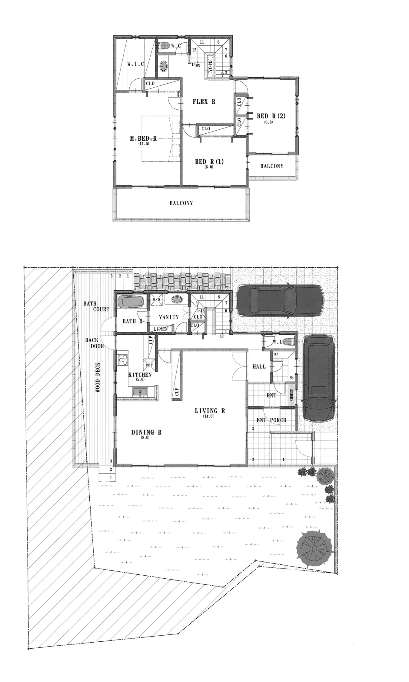
延床面積/147.74㎡、1F床面積/78.67㎡、2F床面積/68.73㎡