PROJECTS

数々の建築制限をクリアした「プライベートリゾートハウス」

日常の喧騒から離れた、最高の休日を過ごした、あの時の幸福を暮らしの中に...。
リゾート空間で感じた充足感を具現化した「プライベートリゾートハウス」で 自分だけのリゾート空間で、毎日をバカンス気分に。


数々の建築制限をクリアした「プライベートリゾートハウス」

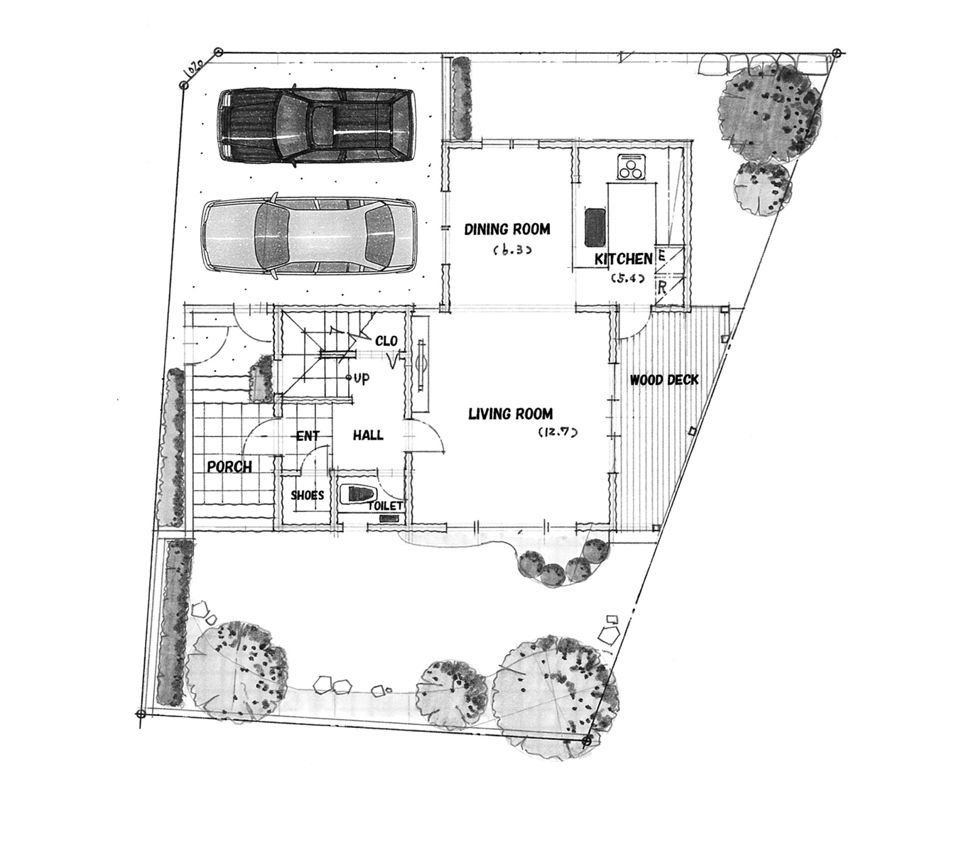
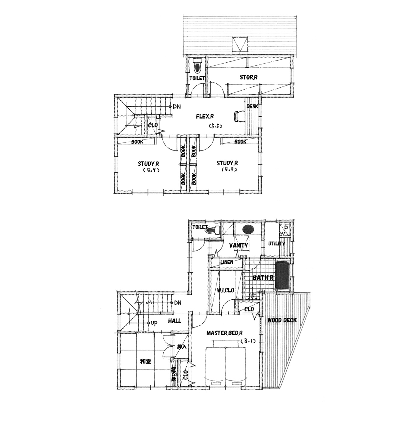
延床面積/152.40㎡、1F床面積/53.67㎡、2F床面積/53.67㎡
3F床面積/54.66㎡