リゾート、それは、風と光と木々の緑を感じられる住まい。自然と触れ合い、自然と重なり合える住まい。
ゆとりを持ったスペースと時間。いつか行ったホテルのような空間。
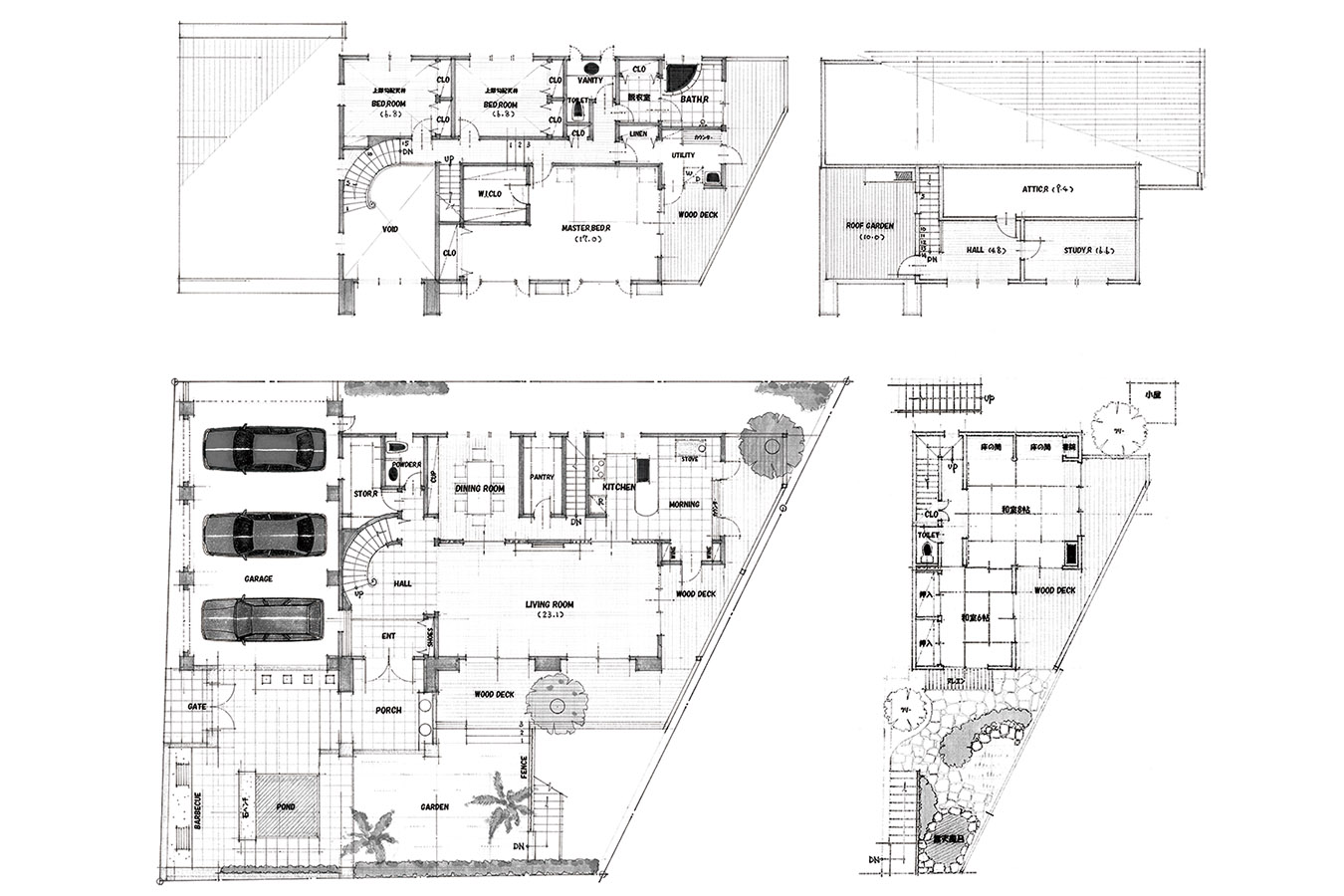
8mもの段差のある土地。マイナスからプラスに変える発想から生まれた浮かぶ家。
真の豊かさを実現した、至高の一邸。

延床面積/330.47㎡、1F床面積/116.29㎡、2F床面積/116.29㎡
3F床面積/54.66㎡、B1F床面積/43.23㎡